Оглавление

Промышленные котлы отопления

Отопительные промышленные котлы в Элисте

Российские промышленные отопительные котлы предназначены для отопления и горячего водоснабжения жилых и административных зданий и производственных цехов, для работы как в закрытых так и в открытых системах теплоснабжения с принудительной циркуляцией воды. Стальные промышленные прямоточные отопительные котлы унифицированной серии КВ предназначены для установки в котельных как при сжигании газа, дизеля и мазута (тип KBа), так и при сжигании твердого топлива в слое (тип КВр, КВм). Водогрейные котлы обеспечивают подогрев воды температурой до 95 - 115 °С с разностью на входе и выходе 25 °С. Диапазон регулирования нагрузки водогрейных котлов может меняться в пределах 50-100 %, рабочее давление котлов 0,6 (6,0) МПа (кгс/см), температура уходящих газов при сжигании газа до 190 °С, при сжигании мазута до 230 °С и твердого топлива до 200 °С.

Преимущества котлоагрегатов

  • высокий КПД, минимальный расход топлива;
  • быстрый выход на номинальную мощность - 2-4 часа;
  • запас по мощности 15 %, сверх номинальной;
  • безнакипность работы;
  • повышенная надежность конструкции;
  • максимальное удобство обслуживания;
  • компактность;
  • быстрый выход на установленную мощность;
  • полная ремонтопригодность;
  • надежность;
  • заводская гарантия 2 сезона.

Отопительные промышленные котлы проиводства котельного завода "РЭП" имеют гидравлическую схему потока воды исключающую образование застойных зон, перегрев поверхностей нагрева, обеспечивает хороший теплосъем, отсутствие накипи и, следовательно, необходимость в водоподготовке. Качественная газоплотная теплоизоляция стальных котлов гарантирует максимальное уменьшение потерь тепла через стенки котла и изоляцию, отсутствие присосов холодного воздуха в топочную камеру котла, делая процесс горения топлива более интенсивным и эффективным.

Большой объем топочной камеры обеспечивает более полное выгорание топлива и снижает механический и химический недожог. Промышленные котлы отопления с развитой конвективной поверхностью нагрева имеют температуру уходящих газов не более 200 °С и как следствие минимально возможные потери с уходящими газами. Установки изначально разработаны с целью снижения прямых затрат при производстве тепловой энергии и нагрева воды за счет эффективного сжигания топлива и удобства монтажа и эксплуатации.

Котлы отопления промышленные конструкция

Как газомазутные котлы, так и твердотопливные любой теплопроизводительности собираются из однотипных элементов. Дымовые газы покидают топки через верхние проемы в задних стенках и омывают конвективные поверхности потоком, направленным сверху вниз.

Промышленные котлы отопления выполнены горизонтальной компоновки, блочно-транспортабельные и состоят из двух блоков: горизонтально-топочного и вертикального конвективного. Конвективный блок состоит из конвективного пакета. Конвективный пакет набирается из U-образных пакетов. Трубы расположены в шахматном порядке. Конвективные трубы привариваются к вертикальным стоякам. Конвективная поверхность нагрева состоит из пакетов, которые при ремонте легко демонтируются даже в ограниченном пространстве (при ширине проходов между котлами в один метр). В нижней части конвективных пакетов находится зольный бункер с лазом для очистки от зольных отложений и осмотра труб конвективного пучка.

Установки экранированы газоплотными панелями, которые обеспечивают облегченную обмуровку и каркас, что существенно снижает массу металла котла. Котельный блок, собранный на опорной раме, представляет собой сварную конструкцию (топочную камеру), состоящую из трубной системы с конвективной поверхностью нагрева, и имеет теплоизоляцию и съемную декоративную обшивку. Котлоагрегаты выполняются в легкой обмуровке, с непосредственным креплением к газоплотным панелям топки и конвективных пакетов. Обмуровка выполняется из минеральных матов и огнеупорного волока, обшивка выполнена из оцинкованной или листовой стали.

Промышленные котлы для отопления просты в обслуживании и ремонте благодаря наличию устройств доступа для осмотра и очистки труб.

Комплектация котлов нашего производства

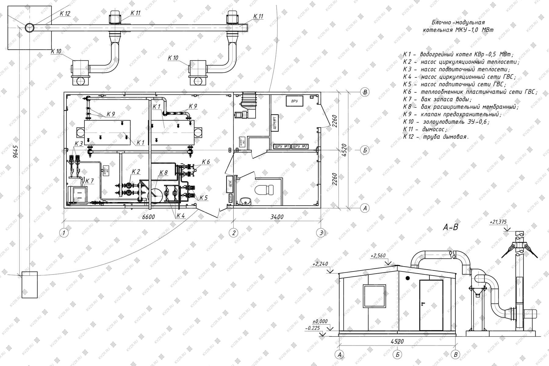
Для управления работой теплогенераторов, обеспечения расчетных режимов работы и безопасных условий эксплуатации установки оснащаются необходимой предохранительной и запорно-регулирующей арматурой, контрольно-измерительными приборами и приборами безопасности, которые устанавливаются согласно схеме расположения арматуры и приборов в пределах котельной установки. Запорная арматура служит для отвода воды из котла в тепловую сеть, подвода обратной воды, слива воды, для периодической продувки и удаления шлама. Контрольно-измерительные приборы (термометры и манометры) обеспечивают измерение давления и температуры на входе и выходе воды из котла. Приборы безопасности обеспечивают отключение подачи топлива при достижении предельных значений температуры и давления воды.

Газовые и жидкотопливные промышленные отопительные котлы могут работать с различными видами горелочных устройств импортного и отечественного производства, для этого на фронтальной плите изготавливаются отверстия и крепления под подобранную горелку.

Угольные и твердотопливные модели выполняются с различными вариантами топочных устройств:

Степень автоматизацииВид топкиМощностьВид топлива
Ручнаятопка с радиальной воздухораспеределяющей решеткой РВР300 - 2000 кВтуголь, дрова
колосниковая топка150 - 2500 кВтуголь
подовая топка150 - 1500 кВтдрова, бревна, поленья, горбыль, щепа, кора, стружка,опилки, доски, поддоны, ДСП
Полумеханическаятопка с поворотными колосниками РПК300 - 2500 кВтуголь
топка с забрасывателем ЗП с поворотными колосниками ЗП РПК1100 - 4000 кВтуголь
Механическаятопка ТШПМ800 - 3000 кВтуголь
топка ТЛПХ1500 - 4000 кВтуголь
топка ТЛЗМ2500 - 4000 кВтуголь
Автоматическаятопка с бункером и шнековой подачей для сжигания древесного топлива150 - 1500 кВтопилки, пеллеты, щепа, лузга
Возможно исполнение водогрейных котлов для сжигания резервного топлива дров

Агрегаты с ручными топками

Российские водогрейные стальные отопительные промышленные котлы КВр с ручными колосниковыми топками устанавливаются в котельных с ручными топливоподачей и шлакоудалением. Блок котла и топка имеют горизонтальную конструкцию. Топливо в топку подается ручным способом через загрузочную дверцу и сжигается на слоевой топке, под которую вентилятором топки подается воздух для горения. Провал шлака производится через отверстия в колосниках и обратно через загрузочную дверцу в котельный зал.

Теплоагрегаты с подовыми топками

Котел на древесных отходах с подовой топкой применяется для сжигания древесины естественной влажности, сырых и влажных дров, бревен и поленьев, горбыля, щепы, коры, стружки, опилок, досок и поддонов, отходов мебельного производства, ДСП.

Подовая топка изготавливается из огнеупорного кирпича, способствующего созданию пояса зажигания для сжигания сырого топлива. Особая система подачи воздуха в топку способствует интенсивной сушки влажных и сырых древесных отходов крупных и мелких фракций, а также поддерживает процесс горения топлива. Большой объем топочной камеры позволяет единовременно загружать большой объем топлива. Поворотная камера на выходе из топки работает как зона догорания легких и мелких топливных частиц, которые захватываются потоком уходящих газов.

Котлы на естественной тяге

Промышленные котлы для отопления работающие без дымососа мощностью 0,15-1,25 Гкал. Установки разработаны специально для работы на самотяге. Конструкция котлов серии "HEATEXSPERT" обеспечивает КПД более 80 %, надежную работу без дымососа и не имеет никаких препятствий в работе и запуске в переходный период. Это обеспечивает установка уникальной системы регулирования тяги и дутья.

При пуске котлоагрегата при плюсовых температурах на улице, через обводной газоход, не имея на своем пути никакого сопротивления газы, свободно выходят из топочной части котла и двигаются по обводному газоходу, разогревают дымовую трубу. После установления стабильного режима горения слоя топлива, обводной газоход перекрывается, и газы двигаются уже через конвективные пакеты. Установка на самотяге выходит на мощность, КПД максимально. Нет затрат на электроэнергию, нет потерь с уходящими газами, конструкция котла оптимальна.

Котлоагрегаты с топкой с поворотными колосниками РПК

Котлоагрегаты с топкой РПК устанавливаются в котельных с ручной топливоподачей и механическим шлакоудалением. Блок котла и топка изготавливаются двумя блоками, стыкуемыми на монтаже. Топливо в топку подается ручным способом через загрузочную дверцу и сжигается на слоевой топке, под которую вентилятором топки подается воздух для горения. Сброс шлака происходит через проем, образующийся на топке при повороте опрокидывающихся колосников.

Установки с топкой ЗП РПК

Стальные отопительные котлы промышленные с топкой ЗП РПК устанавливаются в котельных с механическими топливоподачей и шлакоудалением. На фронте установлена плита для крепления забрасывателя, на фронте и на боковой стенке установлены дверки для обслуживания топки и контроля процесса горения. Топливо по неподвижной колосниковой решетке разбрасывается с помощью вращающихся лопастей забрасывателя.

В топках полностью механизирован заброс топлива на колосниковую решетку, шуровка слоя топлива, а также шлакозолоудаление выполняется ручным способом. Нагрузка топки регулируется изменением подачи топлива питателем, а также изменением количества подаваемого воздуха. Колосниковую решетку набирают из поворотных колосников. Сброс шлака происходит через проем, образующийся на топке при повороте опрокидывающихся колосников.

Котлы отопительные промышленные с топкой ТШПМ

Отечественные промышленные отопительные котлы КВм с механической топкой с шурующей планкой устанавливаются в котельных с механическими топливоподачей и шлакоудалением. С фронта блока устанавливается топка, блок котла и топка устанавливаются на общую раму. Механическая топка с шурующей планкой прямого хода ТШПм состоит из топочного блока на раме, неподвижных и подвижных колосников, бункера подачи топлива, шурующей планки и вентилятора. Топливо подается транспортером углеподачи, через бункер подачи топлива поступает на шурующую планку и сжигается в слое на водоохлаждаемой трубной колосниковой решетке. Шурующая планка предотвращает спекание топлива и одновременно распределяет топливо по колосниковой решетке.

Под решеткой организованы три зонные камеры, куда подается воздух для горения. Воздух под колосниковую решетку и на вторичное дутье подается от одного вентилятора топки. Удаление шлака с колосниковой решетки происходит за счет движения шурующей планки, которая приводится в движение приводом. Удаление шлака производится транспортером шлакозолоудаления.

Агрегаты с топкой ТЛПХ

Промышленные отопительные котлы с механической топкой с ленточной цепной решеткой прямого хода ТЛПХ устанавливаются в производственных котельных с механическими топливоподачей и шлакоудалением. Блок котла устанавливается на раму топки. Механическая топка с ленточной колосниковой решеткой прямого хода ТЛПХ состоит из угольного ящика, рамы с приводом и ведущим и ведомым валами, передвигающими ленточное колосниковое полотно, состоящее из трех типов колосников: крайних, ведущих и ведомых. Топливо подается транспортером углеподачи ленточного либо скребкового типа, через угольный ящик самотеком поступает на решетку, где сжигается в слое 100-200 мм.

Определенная толщина слоя топлива на колосниковой решетке поддерживается при помощи регулятора слоя в угольном ящике и производится вручную посредством маховиков через червячные передачи. Под решеткой организованы камеры (зоны), куда подается необходимый воздух для горения. Подача воздуха в водогрейный котел должна быть непрерывна (иначе происходит спекание слоя и пережог колосников) и регулируется величиной открывания воздушных шиберов. Воздух под колосниковую решетку и на вторичное дутье подается от одного вентилятора котла. Удаление шлака с колосниковой решетки происходит за счет движения колосникового полотна, которое приводится в движение приводом. Удаление шлака из шлакового канала производится транспортером шлакозолоудаления.

Котлоагрегаты на дровах

Котлы промышленные для отопления работающие на дровах спроектированы специально для сжигания древесного топлива, с учетом его характеристик, что гарантирует высокое КПД котла и его надежную работу именно на этом виде топлива.
Конструкция котла для сжигания дров отличается от угольных котлов:

  • наличием двух загрузочных дверей;
  • большим объемом топочной камеры, для единовременной загрузки большого объема низкокалорийного древесного топлива;
  • наличием поворотной камеры на выходе из топочной камеры котла перед конвективным пучком, увеличивающую зону догорания легких и мелких топливных частиц, захватываемых потоком уходящих газов.

Промышленные отопительные жаротрубные котлы

Жаротрубные котлы производства КЗ "РЭП" могут работать как в паровом, так и водогрейном режиме. Для перевода парового жаротрубного котла КП в водогрейный режим достаточно внести небольшие изменения в обвязку котла. Жаротрубные водогрейные котлы производства Котельный завод "РЭП" выпускаются в трех модификациях на природном газе, дизельном топливе и твердом топливе. В модели для сжигания твердого топлива устанавливается неподвижная колосниковая решетка, в газовых и жидкотопливных моделях котла устанавливаются импортные горелки фирм Ecoflam и UNIGAS.

Жаротрубный котел КВ представляет собой одножаровую горизонтальную конструкцию и состоит из двух цилиндров разного диаметра, вставленных одну в другой и соединенных между собой фланцами и паросборником. В передней части жаровой трубы размещена топка, а в задней части - конвективный пучок труб. К фронтовой стороне жаротрубного котла крепится чугунная фронтовая плита, имеющая крепление для установки вентилятора, который служит для принудительной подачи воздуха в подколосниковое пространство и форсирования процесса горения, либо плита с отверстием и креплением для установки горелки и сжигания газового или жидкого топлива.

Теплоагрегаты на газовом и жидком топливе

Котлы водонагревательные промышленные отопительные мощностью 0,46 - 4,0 МВт, оснащаются горелочными устройствами для сжигания жидкого и газообразного топлива, а за счет универсальной конструкции топочной камеры газовые и жидкотопливные водогрейные котлы КВа позволяют применять широкий ряд горелочных устройств отечественного ГБЛ и импортного производства WEISTHAUPT, Oilon, горелки фирм UNIGAS и ECOFLAM.

Угольные модели для сжигания резервного топлива дров

Для отопительных котельных, покрывающих потребность в тепловой энергии в периоды работы котельной не на полную мощность сжиганием дров, а в качестве основного использующих уголь, Котельный завод "РЭП" предлагает угольные котлы КВр с конструктивной доработкой для сжигания дров. В базовых моделях угольных котлов - выполняется дополнительная загрузочная дверка. Котел максимально эффективно работает на угле, а дополнительная загрузочная дверь, обеспечивает удобство его эксплуатации при сжигании дров

Выбор котельной установки

Выбирая промышленные отопительные котлы, следует обратить внимание на их мощность, вид сжигаемого топлива, способ топливоподачи и шлакоудаления, габаритные размеры и цены. Хороший водогрейный котел должен надежностью, низким уровнем расхода топлива, быть удобным в обслуживании и эксплуатации.

Рекомендации как правильно подобрать водогрейный котел по мощности.

Подбор котельно-вспомогательного оборудования котельной

Эффективность работы котлов зависит помимо прочего от правильного расчета системы отопления, от правильно подобранного вспомогательного оборудования, и правильного выполнения обвязки котельного оборудования.

Специалисты Котельного завода "РЭП" выполняют квалифицированный подбор отопительных промышленных котлов и вспомогательного котельного оборудования согласно пожеланиям заказчика, а также монтаж и пусконаладку водогрейных котлов, и гарантируют работу оборудования согласно заявленным характеристикам, и высочайшее качество производимого котельного оборудования.

  • Рекомендации по подбору тягодутьевых машин;
  • Рекомендации по подбору насосного оборудования.

Купить промышленный отопительный котел

Для того чтобы купить отопительный промышленный котелв Элисте, вы можете оформить заявку в отделе сбыта по телефону (38-52) 29-97-41 (42), либо оформить заявку онлайн. Наши менеджеры дадут консультацию по подбору вспомогательного оборудования для выбранных вами моделей и рассчитают стоимость доставки до вашего региона и населенного пункта. Также предлагаем вам выполнить проект реконструкции котельной.

Автор: Антон Гор

Дата публикации: 08.12.2025

Похожие статьи
О заводе
  • Котельный завод «РЭП» выпускает водогрейные котлы марки HeatExpert и паровые котлы STEAMEXPERT, топки, транспортеры, скиповые подъемники, циклоны и вспомогательное оборудование. Каждое изделие собирается с тщательным контролем качества на всех этапах.
  • Наше оборудование успешно работает практически во всех регионах России от Крыма до Камчатки, на территории соседних государств Казахстана, Белоруссии, Монголии, Литвы, Узбекистана.
  • Разработки проектного отдела завода имеют патенты. Оборудование производится по типовым проектам и по техническим заданиям.
  • Вся продукция завода сертифицирована.
  • Аттестованная технология сварки позволяет выпускать поднадзорную продукцию.
  • Выполняем разделы проектов теплоснабжения для прохождения экспертизы и составления проектно-сметной документации. Состоим в реестре членов СРО для выполнения проектных и строительных работы.
  • Выполняем инженерно-консультационные услуги по эксплуатации и наладке котельных.
3D-турпо заводу

Виртуальный тур нашего завода

3D-турпо котельной

Виртуальный тур нашего завода

Смотреть видеообзор на

Котельный завод "РЭП" изготавливает промышленные отопительные котлы серии КВр, КВм, КВа на всех видах топлива. Производительность до 4 мВт. Температура воды 95-115 градусов.

Наш youtube канал
Документы завода
  • Сертификаты завода
  • Членство в СРО
  • Аттестованная технология сварки
  • Патенты на котельное оборудование
  • Товарные знаки
Смотреть все документы
Сертификат на водогрейные котлы на твердом и жидком топливе
Сертификат на водогрейные котлы на газе и жидком топливе
Сертификат на котлы отопительные паровые КП
Сертификат на топки
Сертификат на щиты управления
Сертификат на скиповые подъемники
Сертификат на золоуловители (циклоны)
Сертификат на конвейеры скребковые
Сертификат на дробилки
Сертификат на клапаны предохранительные
Сертификат на бункер-накопитель механизированный
Сертификат на автоматику газовых горелок
Сертификат о происхождении товара форма СТ-1
Членство в СРО
Членство в СРО
Аттестованная технология сварки
Свидетельство аттестованной технологии сварки
Патент на отопительный котел
Патент на водогрейный котел
Патент на топку водогрейного котла
Патент на водогрейный газовый котел
Патент на водогрейный котел
Патент на топочное устройство твердотопливного котла
Патент на водогрейный котел
HEATEXPERT товарный знак
KVZR товарный знак
STEAMEXPERT товарный знак
Подберите необходимую мощность котла для вашего объекта
Тип здания
Регион
Населенный пункт
Вид топлива
Наружный объем здания (м3)
Отапливаемый подвал

Как подобрать мощность котла для вашего объекта

Подобрать мощность котла по площади важно учитывая не только площадь и объем здания, но и тип зданий и климатические данные региона.

На нашем сайте калькулятор расчета мощности котла учитывает тепло, требуемое на возмещение тепловых потерь через строительные конструкции и потери, вызываемые инфильтрацией (проникновением) наружного воздуха, через их неплотности и периодически открываемые двери.

Наружный строительный объем здания должен определяться умножением площади горизонтального сечения, взятого по внешнему обводу здания на уровне первого этажа на полную высоту здания, измеренную для панельных зданий: от уровня чистого пола (нулевой отметки) до верхней плоскости теплоизоляционного слоя чердачного покрытия, для остальных строений от уровня земли.

Расчетная температура воздуха в отапливаемых зданий принимается в зависимости от типа и назначения здания:

  • Гостиница, общежитие, административное здание, жилые дома + 20 °С;
  • Детские сады, ясли, поликлиники, амбулатории, диспансеры, больницы + 22 °С;
  • Высшие и средние специальные учебные заведения, общеобразовательные школы, школы интернаты, лаборатории, предприятия общественного питания, клубы, дома культуры + 16 °С;
  • Театры, магазины, пожарные депо + 15 °С;
  • Кинотеатры + 14 °С;
  • Гаражи + 10 °С;
  • Бани + 25 °С.

В случае если требуется отопление различных по типу зданий, теплопотребление каждого считается отдельно, полученные значения складываются и подобрать мощность котла нужно в соответствии с общей суммарной мощностью каждого отдельно стоящего задания.

Климатические условия вашего региона принимаются в соответствии с СП 131.13330 Строительная климатология. Данные по всем регионам России занесены в наш калькулятор расчета мощности котла.

Подобрать мощность котла по площади с учетом потребностей объекта в тепле на вентиляцию и горячую воду возможно только с более детальным расчетом. Его вы можете заказать в отделе сбыта котельного завода отправив заявку на электронный адрес sb@kvzr.ru или позвонив по телефонам (38-52) 29-97-41, 29-97-42.

background